ГАБ, Богословский переулок, 16/6с1 (16,9 м2)
Цена: 56 700 000
руб.
Город
Москва
Метро
Адрес
Богословский переулок , 16/6с1
Тип здания
Этаж
1
Площадь помещений
Стоимость объекта
56 700 000 руб.
Валюта договора
Рубль
Срок договора
Долгосрочный
Арендатор
магазин ювелирных изделий "WELEMENTS"
Доходность
7,4%
Окупаемость
13,5
Арендная плата (МАП)
350 000 руб.
Высота потолка
3
описание
Готовый арендный бизнес в историческом центре Москвы.
Сложившиеся торговое окружение.
Интенсивный пешеходный и автомобильный поток.
Арендатор: магазин ювелирных изделий "WELEMENTS"
МАП: 350 000 руб./мес.
Стоимость: 56 700 000 руб. Особенности:
Сложившиеся торговое окружение.
Интенсивный пешеходный и автомобильный поток.
Арендатор: магазин ювелирных изделий "WELEMENTS"
МАП: 350 000 руб./мес.
Стоимость: 56 700 000 руб. Особенности:
- Витринные окна
- Отдельный вход
Техническое оснащение
- ХВС
- ГВС
- Канализация
- Отопление
Возможные назначения
На карте
Панорама
Другие помещения в этом доме
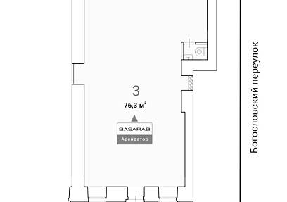
Готовый арендный бизнес
Жилой дом
Москва, Богословский переулок , д. 16/6с1
76.3 м2
Москва
179 400 000 руб.
Пушкинская
Готовый арендный бизнес
Жилой дом
Москва, Богословский переулок , д. 16/6с1
66.1 м2
Москва
156 000 000 руб.
Пушкинская
похожие объекты
ГАБ, Башня Федерация, 30 кв.м
37 000 000 руб.
30 м2
Москва
Деловой центр
Деловой центр (МЦК)
Выставочная
Международная
ГАБ, Башня Федерация, 44,5 кв.м
51 000 000 руб.
44.5 м2
Москва
Деловой центр
Деловой центр (МЦК)
Выставочная
Международная
ГАБ, Башня Федерация, 33,9 кв.м
41 700 000 руб.
33.9 м2
Москва
Деловой центр
Деловой центр (МЦК)
Выставочная
Международная
ГАБ, Башня Федерация, 19,4кв.м
23 490 000 руб.
19.4 м2
Москва
Деловой центр
Деловой центр (МЦК)
Выставочная
Международная
ГАБ, Башня Федерация, 18,8 кв.м
22 900 000 руб.
18.8 м2
Москва
Деловой центр
Деловой центр (МЦК)
Выставочная
Международная
ГАБ, Башня Федерация, 20,9 кв.м
25 400 000 руб.
20.9 м2
Москва
Деловой центр
Деловой центр (МЦК)
Выставочная
Международная
ГАБ, Башня Федерация, 41,2 кв.м
49 900 000 руб.
41.2 м2
Москва
Деловой центр
Деловой центр (МЦК)
Выставочная
Международная
ГАБ, Башня Федерация, 30,1 кв.м
39 000 000 руб.
30.1 м2
Москва
Деловой центр
Деловой центр (МЦК)
Выставочная
Международная
Продажа готового офисного помещения, Чаплыгина, 6 (130 м2)
52 000 000 руб.
130 м2
Москва
Чистые пруды
Задать вопрос



