Аренда, Большая Садовая ул., д.6 стр. 2 (243 м2)
Цена: 1 700 000
руб.
Город
Москва
Метро
Адрес
Большая Садовая, 6с2
Тип здания
Этаж
1
Площадь помещений
Аренда в месяц
1 700 000 руб.
Валюта договора
Рубль
Срок договора
Долгосрочный
Арендатор
Окупаемость
Высота потолка
3,3-3,6
описание
Свободное назначение
Отдельная входная группа с фасада
Отличная пешеходная и транспортная доступность.
Планировка — открытая (свободная).
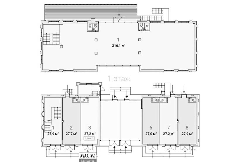
1 этаж – 27,9 м2 (h-3,6 м)
2 этаж – 216.1 м2 (h-3,3 м)
Арендная плата: 1 700 000 руб./мес. Особенности:
Отдельная входная группа с фасада
Отличная пешеходная и транспортная доступность.
Планировка — открытая (свободная).
1 этаж – 27,9 м2 (h-3,6 м)
2 этаж – 216.1 м2 (h-3,3 м)
Арендная плата: 1 700 000 руб./мес. Особенности:
- Витринные окна
- Отдельный вход
- Прямая видимость от метро
Техническое оснащение
- ГВС
- ХВС
- Отопление
- Канализация
Возможные назначения
На карте
Панорама
Другие помещения в этом доме
Аренда
Отдельно стоящее здание
Москва, Большая Садовая, д. 6с2
27 м2
Москва
520 000 руб.
Маяковская
Аренда
Отдельно стоящее здание
Москва, Большая Садовая, д. 6с2
27.7 м2
Москва
550 000 руб.
Маяковская
Аренда
Отдельно стоящее здание
Москва, Большая Садовая, д. 6с2
27.9 м2
Москва
560 000 руб.
Маяковская
Аренда
Отдельно стоящее здание
Москва, Большая Садовая, д. 6с2
27.2 м2
Москва
550 000 руб.
Маяковская
Готовый арендный бизнес
Отдельно стоящее здание
Москва, Большая Садовая, д. 6с2
27.8 м2
Москва
82 500 000 руб.
Маяковская
похожие объекты
Аренда Новинка
ОСЗ 1520 кв.м. Варшавское шоссе
2 100 000 руб.
1520 м2
Москва
Улица Старокачаловская
Аннино
Бульвар Дмитрия Донского
Аренда Новинка
194 кв.м. ст.м.Фрунзенская, Комсомольский проспект
1 300 000 руб.
194 м2
Москва
Фрунзенская
Парк Культуры/Фрунзенская
Задать вопрос


