Продажа офисной виллы в роскошном квартале Life Time Сергея Макеева, вл.11 (328,3 м2)
Цена: 298 150 000
руб.
Город
Москва
Метро
Адрес
Сергея Макеева, Вл.11
Тип здания
Этаж
1
Площадь помещений
Стоимость объекта
298 150 000 руб.
Валюта договора
Рубль
Срок договора
Долгосрочный
Эл. мощность
23,6
Высота потолка
3,57-4,48
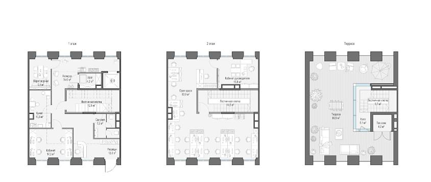
описание
Всего 4 двухэтажные офисные виллы по современным стандартам в роскошном квартале Life Time на Пресне.
Редкий формат обособленной офисной недвижимости. Престижная локация со статусной аудиторией.
Роскошный 2-х этажный офис 246 кв.м с открытой террасой 82,3 кв.м. на крыше.
Высота потолка на 1 этаже - 4,48 м., на 2 этаже - 3,57 м. Предусмотрен собственный
вход с ул. Сергея Макеева, отдельный лифт в подземный паркинг. Правильная форма
помещения и отсутствие несущих конструкций позволяют эффективно зонировать
пространство. Панорамное остекление на 2 стороны обеспечит яркое естественное
освещение. Наличие мокрых точек даёт возможность обустроить полноценную кухню
и санузлы, а собственную террасу можно использовать в качестве воркаут-зоны или
пространства для работы и отдыха на открытом воздухе.
Стоимость: 298 150 000 руб. (Цена за кв. м.: 908 163 руб.) Особенности:
Редкий формат обособленной офисной недвижимости. Престижная локация со статусной аудиторией.
Роскошный 2-х этажный офис 246 кв.м с открытой террасой 82,3 кв.м. на крыше.
Высота потолка на 1 этаже - 4,48 м., на 2 этаже - 3,57 м. Предусмотрен собственный
вход с ул. Сергея Макеева, отдельный лифт в подземный паркинг. Правильная форма
помещения и отсутствие несущих конструкций позволяют эффективно зонировать
пространство. Панорамное остекление на 2 стороны обеспечит яркое естественное
освещение. Наличие мокрых точек даёт возможность обустроить полноценную кухню
и санузлы, а собственную террасу можно использовать в качестве воркаут-зоны или
пространства для работы и отдыха на открытом воздухе.
Стоимость: 298 150 000 руб. (Цена за кв. м.: 908 163 руб.) Особенности:
- Витринные окна
- Летняя веранда
- Отдельный вход
Техническое оснащение
- ХВС
- ГВС
- Канализация
- Отопление
Возможные назначения
На карте
Другие помещения в этом доме
Продажа
Жилой дом
Москва, Сергея Макеева, д. Вл.11
244.4 м2
Москва
290 860 000 руб.
Улица 1905 года
Продажа
Отдельно стоящее здание
Москва, Сергея Макеева, д. Вл.11
423.7 м2
Москва
366 360 000 руб.
Улица 1905 года
Продажа
Жилой дом
Москва, Сергея Макеева, д. Вл.11
172.1 м2
Москва
214 360 000 руб.
Улица 1905 года
Продажа
Жилой дом
Москва, Сергея Макеева, д. Вл.11
168.6 м2
Москва
228 180 000 руб.
Улица 1905 года
похожие объекты
Продажа
Продажа, Башня Федерация, 16,7 кв.м
21 000 000 руб.
16.7 м2
Москва
Деловой центр
Деловой центр (МЦК)
Выставочная
Международная
Продажа
Продажа, Башня Федерация, 65,2 кв.м
78 000 000 руб.
62.2 м2
Москва
Деловой центр
Деловой центр (МЦК)
Выставочная
Международная
Продажа
Продажа, Башня Федерация, 52,3 кв.м
63 800 000 руб.
52.3 м2
Москва
Деловой центр
Деловой центр (МЦК)
Выставочная
Международная
Продажа
Продажа, Башня Федерация, 79,5 кв.м
95 000 000 руб.
79.5 м2
Москва
Деловой центр
Деловой центр (МЦК)
Выставочная
Международная
Продажа
Продажа, Башня Федерация, 11,7 кв.м
19 900 000 руб.
11.7 м2
Москва
Деловой центр
Деловой центр (МЦК)
Выставочная
Международная
Продажа
Продажа, Башня Федерация, 51,1 кв.м
62 000 000 руб.
51.1 м2
Москва
Деловой центр
Деловой центр (МЦК)
Выставочная
Международная
Продажа
Продажа, Башня Федерация, 92 кв.м
99 000 000 руб.
92 м2
Москва
Деловой центр
Деловой центр (МЦК)
Выставочная
Международная
Продажа
Продажа помещения ретейла в роскошном квартале Life Time Сергея Макеева, вл.11 (244,4 м2)
290 860 000 руб.
244.4 м2
Москва
Улица 1905 года
Задать вопрос







