ЖК Белый град, продажа 63,3 кв.м.
Цена: 24 180 000
руб.
Город
Мытищи
Метро
Адрес
ул. Колхозная, Московская обл., Мытищи, д. Челобитьево, 11, к.2
Тип здания
Этаж
1
Площадь помещений
Стоимость объекта
24 180 000 руб.
Валюта договора
Рубль
Эл. мощность
15
Высота потолка
4,9
описание
ЖК "Белый град", сдача 3 квартал 2026г. корп.11.2
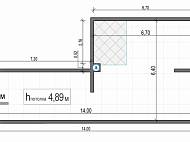
Помещение 63,3 кв.м., 1 этаж, витринные окна, высота потолка 4,9 кв.м.
Без отделки. Возможна рассрочка.
Цена за кв.м. 381 990 руб.
Цена 24 180 000 руб.
ЖК «Белый Град» — 2600 квартир, 23 гектара благоустроенной территории и каскад прудов с выходом в парк «Яуза».
Дома расположены в окружении зелёной поймы. Прогулочные зоны плавно переходят в собственную набережную с природным рельефом вдоль каскада прудов.
Они соединяют «Белый Град» единым зелёным пешеходно-велосипедным маршрутом с парком «Яуза» и ВДНХ. Парк «Яуза» длиной 20 км считается самым протяжённым в Европе.
«Белый Град» расположен рядом с историческим селом Тайнинским, которое издавна привлекало внимание царей и князей. В 350 метрах находится «Дорога в Лавру» — один из старейших паломнических маршрутов России.
На территории «Белого Града» предполагаются магазины, кафе и пекарни на первых этажах, собственные торговый и офисный центры, физкультурно-оздоровительный комплекс с бассейном и медицинский центр
Удобное транспортное сообщение: два быстрых пути до МКАД, через Волковское (1,8 км) и Ярославское (6 км) шоссе, и строится новая дорога Мытищи — МКАД.
Особенности:
Помещение 63,3 кв.м., 1 этаж, витринные окна, высота потолка 4,9 кв.м.
Без отделки. Возможна рассрочка.
Цена за кв.м. 381 990 руб.
Цена 24 180 000 руб.
ЖК «Белый Град» — 2600 квартир, 23 гектара благоустроенной территории и каскад прудов с выходом в парк «Яуза».
Дома расположены в окружении зелёной поймы. Прогулочные зоны плавно переходят в собственную набережную с природным рельефом вдоль каскада прудов.
Они соединяют «Белый Град» единым зелёным пешеходно-велосипедным маршрутом с парком «Яуза» и ВДНХ. Парк «Яуза» длиной 20 км считается самым протяжённым в Европе.
«Белый Град» расположен рядом с историческим селом Тайнинским, которое издавна привлекало внимание царей и князей. В 350 метрах находится «Дорога в Лавру» — один из старейших паломнических маршрутов России.
На территории «Белого Града» предполагаются магазины, кафе и пекарни на первых этажах, собственные торговый и офисный центры, физкультурно-оздоровительный комплекс с бассейном и медицинский центр
Удобное транспортное сообщение: два быстрых пути до МКАД, через Волковское (1,8 км) и Ярославское (6 км) шоссе, и строится новая дорога Мытищи — МКАД.
Особенности:
- Витринные окна
- Новостройка
- Отдельный вход
- Черновая отделка
Техническое оснащение
- хвс
- гвс
- отопление
Возможные назначения
На карте
похожие объекты
Продажа
Продажа ОСЗ под реконструкцию, ул. Братьев Рябушкинских, 23 (151 м2)
60 000 000 руб.
151 м2
Москва
ЗИЛ (МЦК)
Продажа
Продажа, Башня Федерация, 16,7 кв.м
21 000 000 руб.
16.7 м2
Москва
Деловой центр
Деловой центр (МЦК)
Выставочная
Международная
Продажа
Продажа, Башня Федерация, 65,2 кв.м
78 000 000 руб.
62.2 м2
Москва
Деловой центр
Деловой центр (МЦК)
Выставочная
Международная
Продажа
Продажа, Башня Федерация, 52,3 кв.м
63 800 000 руб.
52.3 м2
Москва
Деловой центр
Деловой центр (МЦК)
Выставочная
Международная
Продажа
Продажа, Башня Федерация, 79,5 кв.м
95 000 000 руб.
79.5 м2
Москва
Деловой центр
Деловой центр (МЦК)
Выставочная
Международная
Продажа
Продажа, Башня Федерация, 11,7 кв.м
19 900 000 руб.
11.7 м2
Москва
Деловой центр
Деловой центр (МЦК)
Выставочная
Международная
Продажа
Продажа, Башня Федерация, 51,1 кв.м
62 000 000 руб.
51.1 м2
Москва
Деловой центр
Деловой центр (МЦК)
Выставочная
Международная
Продажа
Продажа, Башня Федерация, 92 кв.м
99 000 000 руб.
92 м2
Москва
Деловой центр
Деловой центр (МЦК)
Выставочная
Международная
Задать вопрос



